Rumah bertipe 45 merupakan rumah mungil yang dibangun diatas lahan dengan luas 8 x 15 meter persegi. Biasanya desain yang paling tepat untuk ukuran lahan ini adalah model rumah minimalis modern. Meski rumah tipe 45 termasuk kecil, Anda tetap bisa menciptakan rumah sehat yang ramah lingkungan dengan pencahayaan yang baik, jendela besar dan ventilasi yang baik. Cahaya matahari dan udara segar dapat masuk dengan leluasa ke dalam ruangan rumah. Memang jika kebutuhan akan ruangan meningkat, rumah type 45 bisa direnovasi menjadi rumah dengan tingkat 2 atau 3 lantai yang tetap mengutamakan unsur kenyamanan.
Desain Interior Rumah Tipe 45
Bagian depan desain rumah type 45 tentunya adalah ruang tamu yang dapat Anda rancang dengan berbagai tema desain yang Anda inginkan, bisa tema klasik, modern minimalis dan lain sebagainya. Furniture dan warna cat ruang tamu disesuaikan dengan selera dan tema ruangan. Area ruang tamu sebaiknya tidak dibuat terlalu luas karena ada space lain yang dibutuhkan. Ruangan lain yang perlu Anda rancang adalah ruang keluarga. Tema dari ruangan ini disesuaikan dengan selera dan kebutuhan pemilik rumah. Selanjutnya Anda bisa mendesain kamar tidur sebanyak dua buah dengan ukuran yang sama. Desain kamar tidur bisa mengacu pada tema ruangan-ruangan lain. Ruangan-ruangan lain yang perlu Anda rancang adalah ruang dapur dan kamar mandi. Anda bisa mendesain dapur minimalis untuk menyiasati sempitnya area dengan konsep terbuka dengan ruang makan.
Desain Eksterior Rumah Type 45
Untuk tipe rumah ini di bagian eksterior, Anda bisa membuat taman di bagaian belakang rumah. Taman dapat dipercantik dengan jenis tanaman tertentu dengan aksesoris lain seperti kursi taman, lampu taman dan juga kolam minimais. Untuk bagian fasad rumah tipe 45, Anda bisa menambahkan beranda rumah berukuran minimalis sebagai teras awal untuk menyambut tamu yang berkunjung ke rumah Anda. Di beranda depan, Anda bisa menghiasinya dengan menempatkan pot-pot kecil yang ditanami tanaman hias.
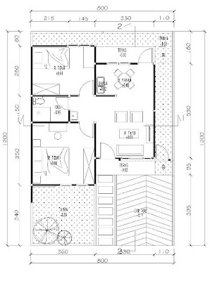
Jika Anda mencari gambar denah rumah type 45 minimalis yang sederhana, berikut kami tampilkan beberapa contoh sketsa yang dapat Anda jadikan inspirasi untuk mendesain rumah impian Anda.






























0 Response to "30 Macam Denah Rumah Type 45"
Post a Comment